4-Zimmer-Wohnung mit Blick auf die Weinreben (Freiburg-St. Georgen)
Objektbeschreibung:
Wohnen mit Blick auf die Weinreben, leben im historisch gewachsenen Ortskern von Freiburg St. Georgen, der in unmittelbarer Nähe zum Schönberg liegt. Der Stadtteil blickt auf eine lange Tradition des Weinbaus zurück. In diesem südwestlichen Vorposten der Schwarzwaldmetropole liegen die Weinhöfe in einem idyllischen Ambiente.
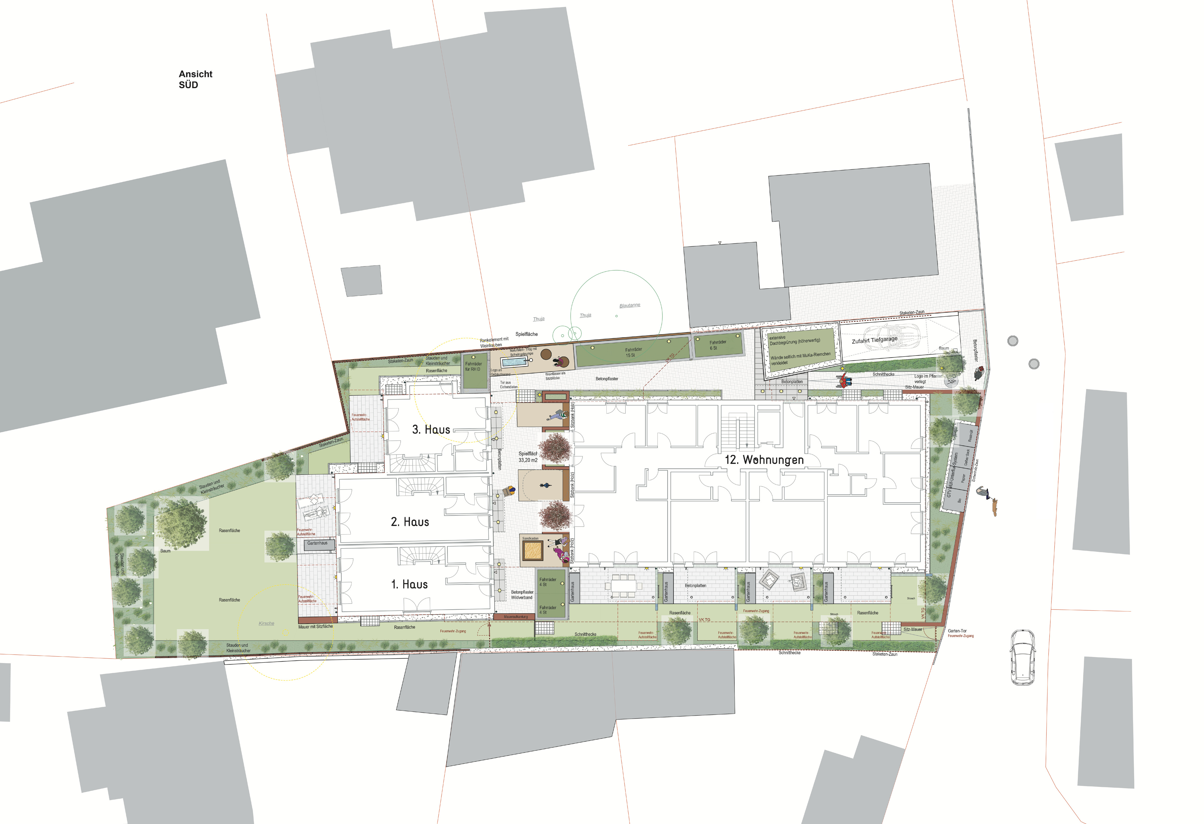
Der Wohnkomplex besteht aus einem vierstöckigen Gebäude mit 12 Wohneinheiten sowie drei dreistöckigen Reihenhäusern. Der Bezug der Lokalität zum Weinbau wird anschaulich beim Blick aus dem Fenster: Die beiden Gebäudekomplexe bieten traumhafte Ausblicke auf die Rebhänge des nahe gelegenen Schönbergs. Das Weingut Faber liegt gleichsam um die Ecke. Und auch das St. Georgener Weinfest, bei dem die Bürger des Gemeindeverbunds einmal im Jahr zusammenkommen, findet vor der historischen Kulisse des idyllischen Ortsteils statt.
Die 4-Zimmer-Wohnung im ersten Obergeschoss hat neben einem großzügigen Wohn-/Esszimmer mit offener Küche, drei Schlafzimmer, ein Gäste-WC mit Waschbecken, Abstellraum und ein Balkon. Das Bad ist mit ebenerdiger Dusche, Badewanne, Doppelwaschbecken und Toilette ausgestattet.
Die Außenansicht der Wohnanlage mit ihrer ansprechenden modernen Architektur, aber auch mit Elementen wie dem kunstvollen Kammputz der hochwertigen Fassade, der Außenanlage mit Naturstein oder dem – dank BEGA Designerleuchten – hochwertigen Beleuchtungskonzept verweist auf die hohe Wohnqualität im Inneren. Sie beginnt bereits im edel gestalteten Treppenhaus mit Aufzug. Dank großzügiger Aufzugkabine ist auch der Transport von Fahrrädern in die barrierefreien Wohnungen bequem möglich.
Die Wohneinheiten mit flexiblen Grundrissen verfügen über Eingangstüren in Echtholz, Eichenparkettboden und Fußbodenheizung. Den Kunststoff-Fenstern mit Dreischeibenisolierverglasung sind elektrische Jalousien und elektrische Rollläden beigegeben. Waschmaschinenanschluss, Videogegensprechanlage sowie Kabel-Anschlüsse sind in allen Wohneinheiten selbstverständlich vorhanden. Alle Wohnungen sind energieeffizient und erfüllen den KfW-55-Standard.
Ein besonderes Highlight: Die gesamte Wohnung ist mit eleganten Designerspiegeln, maßgefertigten Einbauschränken und einer hochwertigen Einbauküche ausgestattet. Jedes Zimmer überzeugt mit einem individuell abgestimmten Beleuchtungskonzept und exklusiven Designerlampen – für ein stilvolles Wohnambiente bis ins Detail.
Die nach Süden ausgerichteten Balkone und Terrassen sind mit filigranen Weinrankgerüsten versehen und laden zum Verweilen ein. Ergänzt wird das Angebot durch eine Tiefgarage, überdachte Fahrradstellplätze sowie ein modernes Unterflur-Müllsystem. Eine Luftwärmepumpe mit eXergiemaschine sorgt für nachhaltige und effiziente Wärmeversorgung.
Haben wir Ihr Interesse geweckt? Gerne senden wir Ihnen unser ausführliches Exposé.
Unser zusätzlicher Service für Sie:
– individuelle Finanzierungskonzepte (z. B. Zwischenfinanzierung)
– Bewertung und Vermarktung Ihrer Immobilie
– Umbauvorschläge und Begleitung bei Bauvorhaben
Immobiliendetails:
Lage
In der Nähe befinden sich ein Kindergarten, eine Grundschule sowie das örtliche Schwimmbad. Zahlreiche Genuss- und Einkaufsmöglichkeiten liefern neben dem renommierten Weingut Faber eine Vielzahl von gutbürgerlichen, feinen Restaurants (z. B. Gasthaus zur Linde, Gasthaus Weinberg) sowie Supermärkten, die sich ebenfalls in der unmittelbaren Umgebung angesiedelt haben.
Das Bauprojekt Weinhöfe entsteht im historischen Ortskern Wendlingen, wo man von den elegant geschwungenen Straßen und Wegen aus immer wieder die wunderschönen Reblandschaften erblicken kann.
Der Freiburger Stadtteil St. Georgen genießt eine ideale Anbindung an die Autobahn sowie die Bahnlinie. Die Innenstadt ist innerhalb von wenigen Minuten erreichbar.
Unser zusätzlicher Service für Sie:
individuelle Finanzierungskonzepte
Bewertung und Vermarktung Ihrer Bestandsimmobilie
Umbauvorschläge und Begleitung bei Bauvorhaben



































